HOMETHE HOUSETHE COMMUNITYTHE GALLERYLOCATION-CONTACT


The House

Les Dahlias was originally built in the 1860’s, we have now owned it for 5 years. We have grand plans to one day have kids duplex rooms set in the attic, the upstairs barn area glazed and turned into a large kitchen / living room space. That said the house is now well furnished and very comfortable with plenty of space for 2 families.

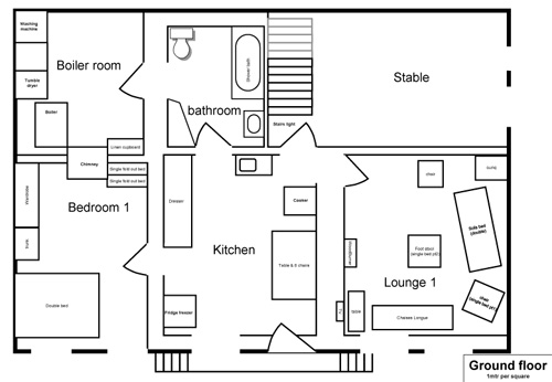
The house is split into 2 apartments which are joined via stairs between the stable and barn.

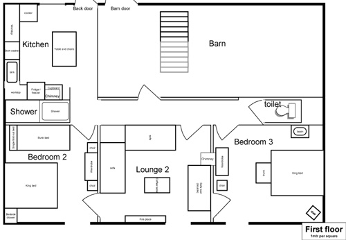
Upstairs offers 3 large rooms and a kitchen with access to the rear garden. The space is laid-out to provide bedrooms either end and a lounge/sleeper in the centre.

All 3 rooms have French doors opening out to a long veranda facing directly over the village of St Jean d’Aulps with Mount Evian (famous as the source of the water) in the background.

Downstairs there is a large kitchen and lounge/sleeper with a family bedroom. The lounge offers plenty of space for all occupants of the house to gather after a supper to relax in front of the traditional wood burner.

In the Winter Les Dahlias is connected to the expansive Portes d’Soliel resort via a bus which stops on the main road 500mtrs away, or there is the option to ski at the local resort Roc d’Enfer which offers a quieter cheaper area ideal for beginners and intermediates this again is reached by bus which stops in the church square 1minute’s walk away.

In the Summer the lifts are open from June until the beginning of September, Les Dahlias offers inspiring mountain scenery for walking and hiking, the largest mountain biking area in Europe, Swimming in lakes or pools, tennis, pony rides, fantasticable (Google-fantasticable chattel) historic trips to medieval towns or a 15km descend following the river to Lake Geneva where you can catch a boat to Lausanne then Montreux in Switzerland.

Our house is not 5 star but it is comfortable, full of character expect plenty of space but not an en-suite in every/any room!!

 

 

 

Les Dahlias - Ground Floor Lounge

Ground Floor Kitchen


Ground Floor Kitchen  Ground Floor Lounge  Ground Floor Lounge  Ground Floor Lounge  Ground Floor Kitchen  Ground Floor Kitchen  Ground Floor Bedroom - Sleeps 4  Ground Floor Bedroom Sleeps 4  Ground Floor Bathroom  Ground Floor Bathroom  Ground Floor Stable - useful for drying & storing ski equipment  First Floor Lounge  First Floor Lounge  First Floor Kitchen  First Floor KitchenFirst Floor Kitchen  First Floor Kitchen  First Floor Kitchen  First Floor Kitchen  First Shower Room  First Floor Toilet  First Floor Bedroom 1 - Sleeps 2  First Floor Bedroom 1 - Sleeps 2  First Floor Bedroom 1 - Sleeps 2  First Floor Bedroom 2 - Sleeps 4  First Floor Bedroom 2 - Sleeps 4  First Floor Bedroom 2 - Sleeps 4  First Floor Bedroom 2 - Sleeps 4  First Floor Bedroom 2 - Sleeps 4

Ground Floor Plan

First Floor Planid "mainContaier" Goes Here